【项目介绍】
川投科创大厦位于成都新川创新科技园内,占地13.65亩,业态组成为办公、商业和精品酒店,2024年建成投入使用。
项目优势:
一、地铁黄金口岸
紧邻天府大道、梓州大道,距1号线四河站仅300米,距离新老城区和双流机场、天府机场车程均在40分钟内。相较周边同类楼宇,项目兼具超高性价比与收益预期。
二、汇聚产业资源
毗邻中国移动五粮液、网易、OPPO、爱奇艺等知名企业驻地,所在新川创新科技园为国内首个5G+人工智能产业园区,目前已入驻40余个重大项目。
三、 精工匠筑品质
更美观:项目总建筑面积6.13万㎡,建筑总高度87.9m,建筑立面采用“折线型”,兼具科技感与律动感。
更开阔:内部空间采光通透视野开阔,室内使用大跨度轴柱、4.2-5.1m层高大空间感设计。
更绿色:建筑内采用分模块、可调节式空调系统,节能舒适双管齐下。
【平面展示】
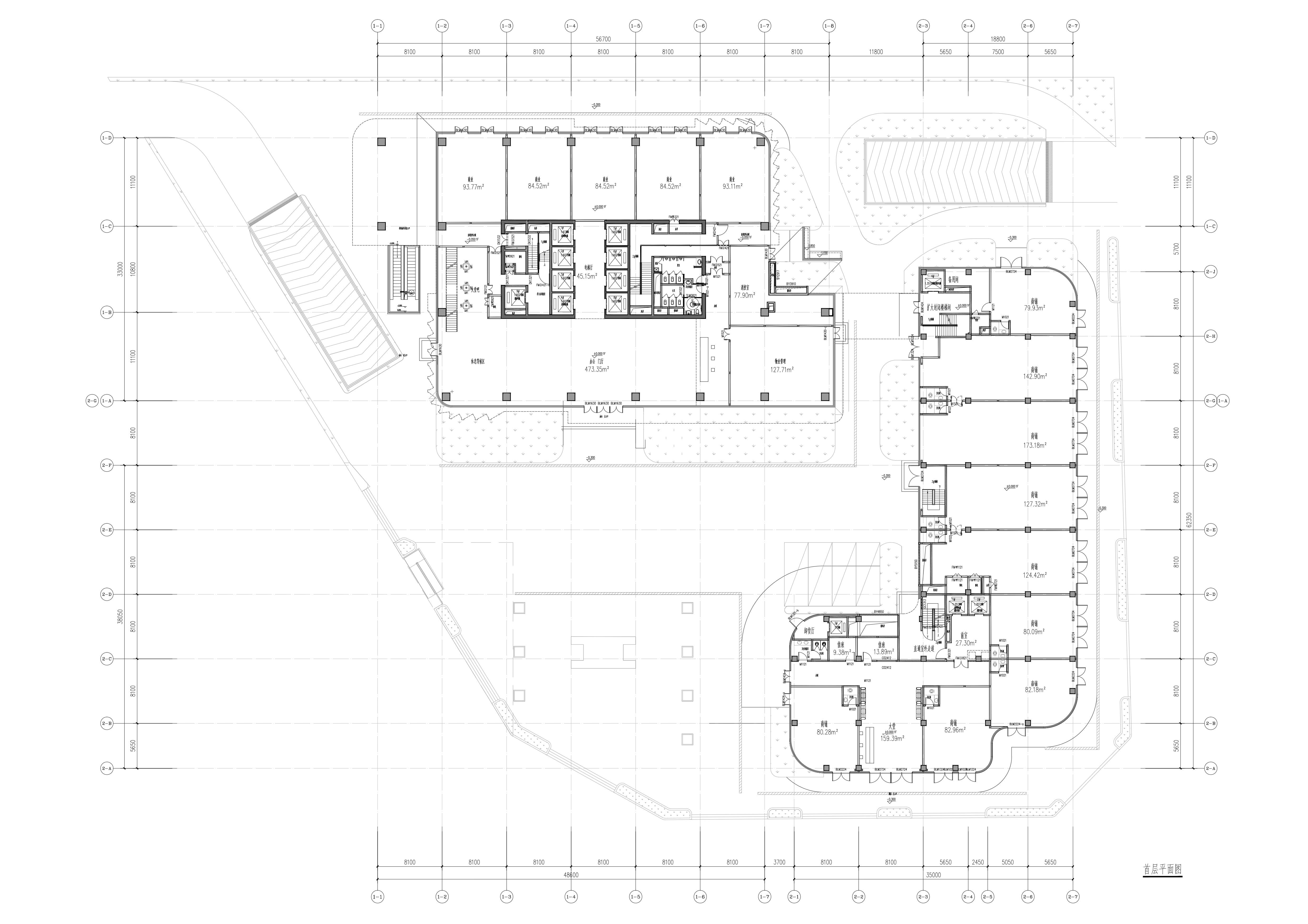
(项目首层平面图)
- 1#楼为甲级写字楼(示图左上),共18层,建面33259.73㎡,建筑总高度为79.85米。
- 预留信息机房:预留信息机房为第5层,层高5.1米,建筑面积为1843.29㎡,设计荷载为10KN/㎡,铺设万兆光纤线缆。
- 2#楼为商务配套建筑(示图右下),共5层,建面 7789.71㎡,建筑总高度为23.95米。1层为商业和酒店大堂,层高6米;2层为餐厅,层高5.1米;3-5层为客房,层高3.9米。
- 地下机动车停车位共计330个,其中充电车位占四分之一。
【实景呈现】
实拍视频:
实拍照片:
80-1800㎡ 甲级定制空间
写字楼宇、临街旺铺、整租酒店 抢租从速
业主热线: 028-86057663;028-86057661
项目地址:成都高新南区核心区新川创新科技园(新裕路99号)
